Комната 67,30 м2 по ул. Верхняя Первомайская 24/17 за 13500000 руб.

Цена 13 500 000 р.
Адрес Верхняя Первомайская, 24/17
Этаж 3/5
Этажность дома 5
Площадь 67,3 м2
Продам, кол-во комнат 2
Общее кол-во комнат 3
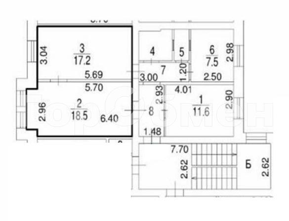
Две очень просторные изолированные комнаты 18.5 и 17.2 м² (номер 2 и3 на плане) в трехкомнатной квартире на третьем этаже кирпичного дома с высокими потолками 3м. Это не доли. Две комнаты с отдельным кадастровым номером, без балкона. Кухня 7,5м2, санузел раздельный, газовая колонка. Фасад дома после ремонта, подъезд чистый аккуратный. Окна во двор, приятный вид. Зелень и детская площадка. Район обжитой - школы и садики, магазины и аптеки, банки и до метро не далеко. Рядом Измайловский лесопарк - 12 минут пешком до огромного массива, вело и пешеходные дорожки, рай для прогулок на природе. Соседи не живут, изредка появляются. Никто не прописан. Полная стоимость в договоре. Оперативно покажем
Объявление № 23947126
Дата подачи:
4 марта 2026 г. 4:12
Дата обновления:
4 марта 2026 г. 4:12
Просмотров 1 Хотите продать быстрее?

Продавец
Агентство недвижимости:
ДМИТРИЕВА НАТАЛЬЯ ВАДИМОВНА
Показать номер телефона
Пожаловаться
Комментарии:
Добавить